
La caseta de madera MTB FIVE es la más pequeña de la gama. Pero en sus 30m2 cuenta también con dos pisos y resulta altamente funcional y acogedora, ya que dispone de dos dormitorios. La distribución de espacios ha sido concebida para aportar una sensación de espacio y confort en su interior, con una altura hasta cumbrera de 4m, el ancho y largo son por su parte 3.75m y 7.82m respectivamente.
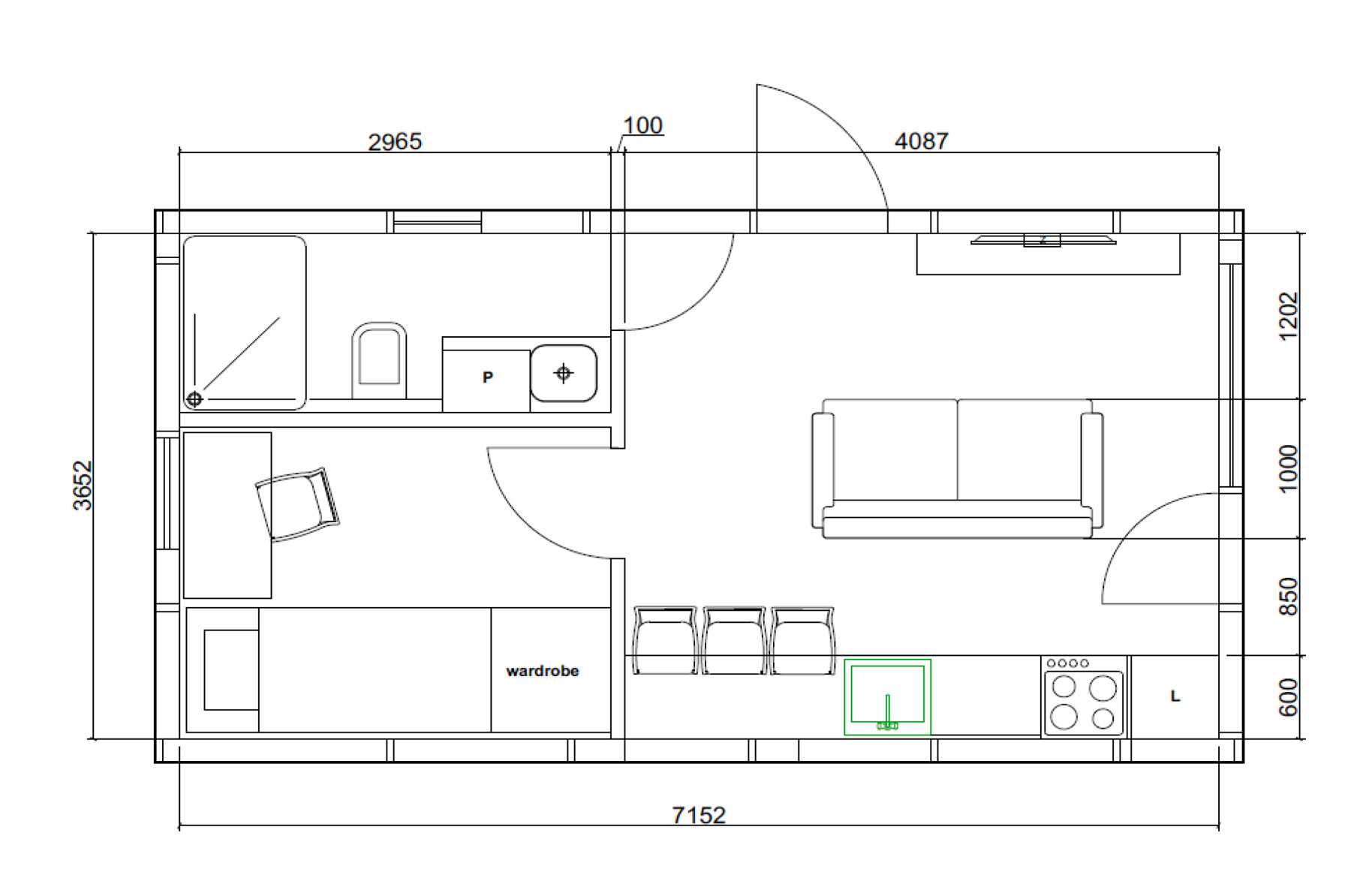
En la planta baja cuenta con una habitación, salón-comedor y baño, ascendiendo las escaleras encontramos la habitación de matrimonio. En cuanto a materiales, también cuenta con triple acristalamiento, puerta anti-robo y acabados en este caso con antracita por fuera y blanco por dentro. Asimismo, posee una capa de aislamiento EPS 80 de 15 cm.
¿Por qué comprar una Caseta de Madera MTB-FIVE?
Nuestras casetas de madera son modelos premium, con una estética cuidada y vanguardista y empleando siempre excelentes calidades tanto en materiales principales (estructura, tejado…) como en los materiales destinados al aislamiento.
Todas las características de la Caseta de Madera MTB-FIVE
- La altura de la cumbrera es de hasta 4 m, gracias a lo cual obtenemos la altura óptima de 250 cm en la planta baja. Permite un uso cómodo de la casa, es perfecto y no agobia.
- El ancho y largo totales son 3,75 m/7,82 m.
- Gracias al bien pensado desarrollo de esta zona, conseguimos un lugar para un cómodo baño, iluminado por una ventana de 122 cm de alto x 62 cm de ancho. Es de triple acristalamiento, de PVC, con posibilidad de apertura y basculación. El color de la fachada es antracita por fuera y blanco por dentro. Ventana montada sobre cinta de expansión.
- El corazón de la casa es un amplio salón con cocina americana.
- El modelo está equipado con puerta de entrada, antirrobo, ergonómica y de 90 cm de ancho. Garantizan un uso cómodo. Fabricado con materiales de alta calidad. Son pesados y silenciosos.
- Los grandes ventanales de balcón, de casi toda la pared, despiertan gran admiración en nuestros modelos. Triple acristalamiento, PVC, 240 cm de alto y 250 cm de ancho. Una parte es fija, la otra se puede abrir e inclinar hasta 80 cm de ancho. También montado en la cinta de expansión.
- También se ha instalado una ventana de cocina de 120 x 120 cm.
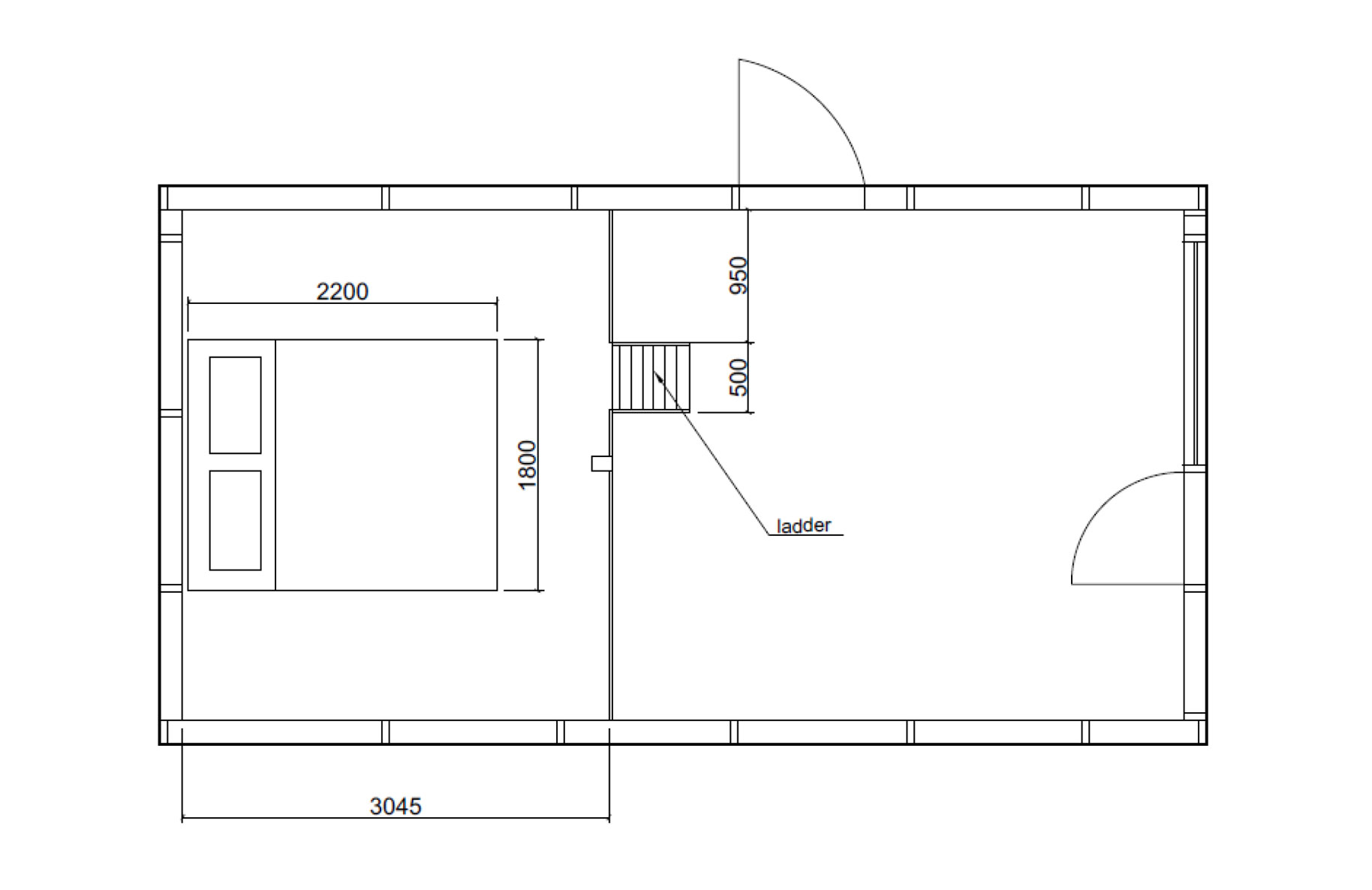
- Una habitación adicional en la terraza es un dormitorio de tamaño óptimo. Iluminado por un gran ventanal balcón que se puede abrir e inclinar. La ventana mide 208 cm de alto x 100 cm de ancho. Triple acristalamiento de PVC, por fuera del color de la fachada antracita, por dentro blanco.
- La casa está además equipada con un pequeño altillo con fuertes inclinaciones. La pendiente del techo de este modelo es de 35 grados. Está iluminado gracias a dos ventanas a dos aguas de triple acristalamiento con unas dimensiones de 100 x 120.
- La construcción de la casa se basa en madera de marca escandinava con certificación C24. No requiere impregnación.
- Los paneles SIP son elementos de paredes exteriores, tabiques, entrepisos y techos.
- Capa aislante: EPS 80 – 15 cm
- Parámetro U 0,23
- La fachada de la casa está hecha de chapa Budmat Iron Click “con costuras”, en color RAL 7016 – antracita mate.
Ensamblado de la Caseta de Madera MTB-FIVE
Las Casetas de Madera MTB-FIVE son casas son casas para autoensamblaje elaboradas a partir de elementos prefabricados.
Su construcción y manejo de materiales no es complejo, pero sí requiere de un equipo cualificado y con experiencia al respecto. El elemento más pesado pesa 70 kg, por lo que no es necesario utilizar grúa, y el tiempo de instalación, aunque depende del modelo, características y del personal empleado, suele durar aproximadamente entre 6 y 12 días hábiles.
Nuestro equipo de montaje aportará los elementos necesarios para esta labor, como andamios móviles, plataformas portátiles y por supuesto los pertinentes equipos de protección personal (cinturones de protección, calzados especializado, cascos, etc.)
El proceso de ensamblado se puede subdividir en cuatro fases:
Ensamblaje de la estructura y la envolvente de la caseta

Durante esta fase damos vida a la caseta montando sus elementos básicos, así como los elementos aislantes.
Ensamblaje de puertas y ventanas

Ninguna caseta de madera está completa hasta disponer de sus pertinentes puertas y ventanas. Durante esta fase, se colocan estos elementos.
Finalización del tejado

El tejado de cualquier caseta de madera es una parte vital. En esta fase colocamos las hojas del tejado, las membranas aislantes así como canalones y sistemas de bajantes para evacuar el agua de lluvia.
Finalización de la fachada

Ahora la caseta de madera está prácticamente terminada. Falta dar los últimos retoques a la fachada para aportarle la estética particular de cada modelo.
¿Cómo se prepara el terreno para instalar una Caseta de Madera MTB-FIVE?
Toda casa comienza por sus cimientos, sin embargo este tipo de casetas no son casetas de obra con su correspondientes cimientos, proyecto de obra, etc. Este tipo de casetas de madera requieren de una modificación mínima del terreno para ser instaladas y han sido diseñadas para que ocupen un espacio mínimo sobre el suelo.
Eso sí, el terreno debe ser firme, compacto y correctamente nivelado. Se puede hacer una ligera preparación de él limpiando la zona de tierra vegetal y echándole una capa de 15 a 20 cm de zahorra (material formado por áridos no triturados, suelos granulares, o una mezcla de ambos)
Las casetas descansan sobre bloques de hormigón, que a su vez descansan sobre pilotes perforados en el terreno que ejercen de cimentación (los pilotes no son visibles una vez realizada la instalación).
Con esta metodología, y dado que la caseta sigue siendo independiente de la cimentación y puede trasladarse de un lugar a otro manteniendo su integridad, buscamos que la caseta de madera sea considerada un bien mueble.
¿Qué aislamiento tiene una Caseta de Madera MTB-FIVE?

El aislamiento de nuestras casetas de madera es de primera calidad. Los paneles SIP de 15 cm de grosor, junto con el aislamiento externo de 5 cm de lana de roca, lo que protege a la caseta de madera de las variaciones externas de temperatura, así como del ruido.
Estas calidades en el aislamiento suponen un elemento diferenciador y nos acercan a los estándares de las denominadas como casas pasivas.
Costes de transporte de la Caseta de Madera MTB-FIVE
El coste del transporte corre a cargo del comprador y se calcula individualmente para cada proyecto, según el lugar de entrega y el tamaño de la casa.
¿Cómo se entrega la Caseta de Madera MTB-FIVE?
La casa se entrega completamente terminada en el exterior, incluyendo fachada, ventanas, tejados etc. Interior en bruto, sin electricidad, fontanería, etc.
Opcionalmente, SOLARIX puede ejecutar las labores de fontanería y electricidad. E incluso instalar paneles solares o aerotermia.
¿Cómo se abastece de energía la Caseta de Madera MTB-FIVE?
En SOLARIX tenemos una amplia experiencia en el sector fotovoltaico. Nuestras Casetas de Madera están aisladas de la red eléctrica, pero podemos instalar un sistema de autoconsumo aislado para proporcionar energía a la caseta de madera y abastecer los consumos con electricidad limpia y gratuita.





